it-ITen-USfr-FRde-DE
  

Dryers - Tobacco - Equipment

Hi Tech re source supports its customers at all stages of the treatment of tobacco supplying machinery for the whole processing chain of tobacco with functioning both manual and automatic.

Sorting belt for dry tobacco



Request Information

 
  
 
Send
* denotes mandatory field

TAG



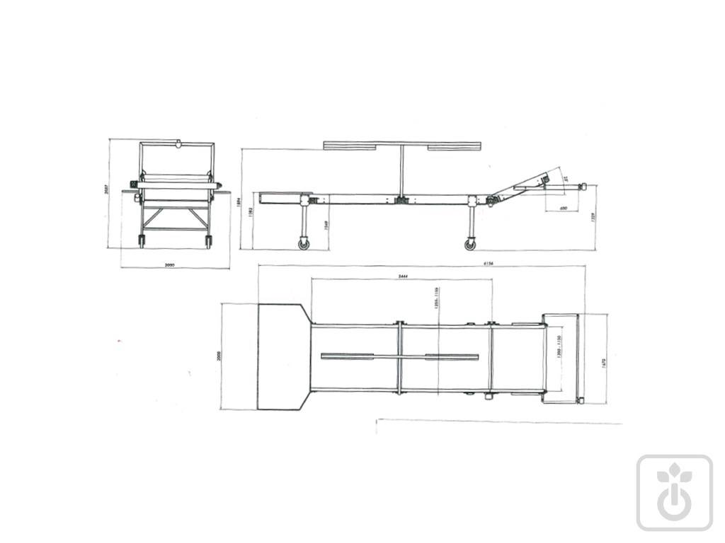
The sorting belt for the dried tobacco is employed after the drying process of the tobacco.


  • Product description
  • Specifications

The sorting belt for the dried tobacco is employed after the drying process of the tobacco. The tape is used for the selection of the product to be sent to processing centers. This important step is used to select the leaves, eliminating those burned or moldy and depriving them from their fragments and residues from the ground, before they end up in the same shipping containers (usually cardboards).

The sorting belt for the dried tobacco is composed of:

  • Horizontal tape accompanied by motorvariatr for the regulation of the feed adjustment of tobacco
  • Cross tape for discharging of sorted tobacco in suitable cardboard boxes
  • 2  trolleys to move the boxes.

Related Products

Belt loader green tobacco in the containers

The tape loader for green tobacco is a valuable accessory for automating the upload of green tobacco in the containers.

Dryers  Equipment



Seedbed for tobacco seedlings

The seedbed has been designed specifically for the cultivating of seedlings of tobacco.

Dryers  Equipment



Machine press dry tobacco inside the cartons

Automatic press for the compression for the dry tobacco inside the cartons at 1 or 2 workstations.

Dryers  Equipment



Press insert-combs for tobacco in the containers

Machinery for automation of the attachment of green tobacco inside the containers

Dryers  Equipment



Special high pressure pump on wheels

Special pump on wheels for tempering the tobacco

Dryers  Equipment



High performance boiler for tobacco dryers

It’s a special boiler with flue gas condensation for tobacco dryers.

Dryers  Equipment